4761 birch lane

barriere, bc

Meticulously kept and maintained 2005 custom built two storey style home with the primary bedroom on the main floor, walk out access to the gorgeous yard and 21'1x25'1 detached shop with 100 amp power, 220 power and 50 amp hook ups.



Listed for $749,900







Meticulously kept and maintained 2005 custom built two storey style home with the primary bedroom on the main floor, walk out access to the gorgeous yard and 21'1x25'1 detached shop with 100 amp power, 220 power and 50 amp hook ups. 

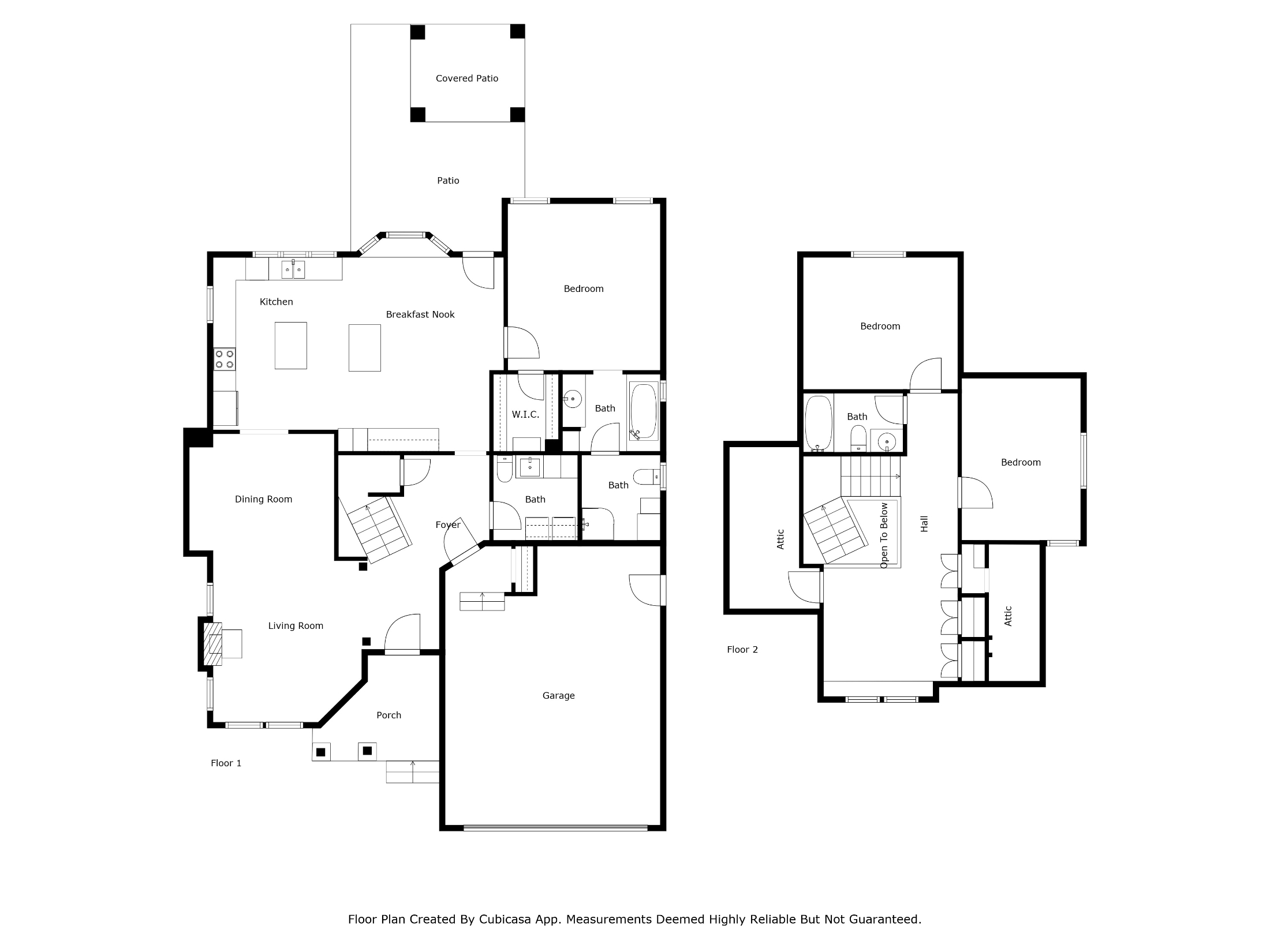
Walk through the main entry to this home and you will find a large living room with beautiful hardwood flooring and wood burning fireplace, perfect for the cold months. The living room is open to the dining room space and it flows through to the large kitchen. The kitchen has ample storage and features two islands – amazing for the baker in the family. To round out the kitchen area there is a built-in desk and nook with bench seating. Walk off the kitchen area to the back yard which has a large patio space covered by a pergola with power and lights. The yard has been beautifully landscaped and includes underground sprinklers. The main floor of the home includes a large primary bedroom with a walk-in closet, hardwood flooring and a 4 piece ensuite. There is a 2 piece bathroom shared with the laundry space and through to the attached garage there is a small mud room. 

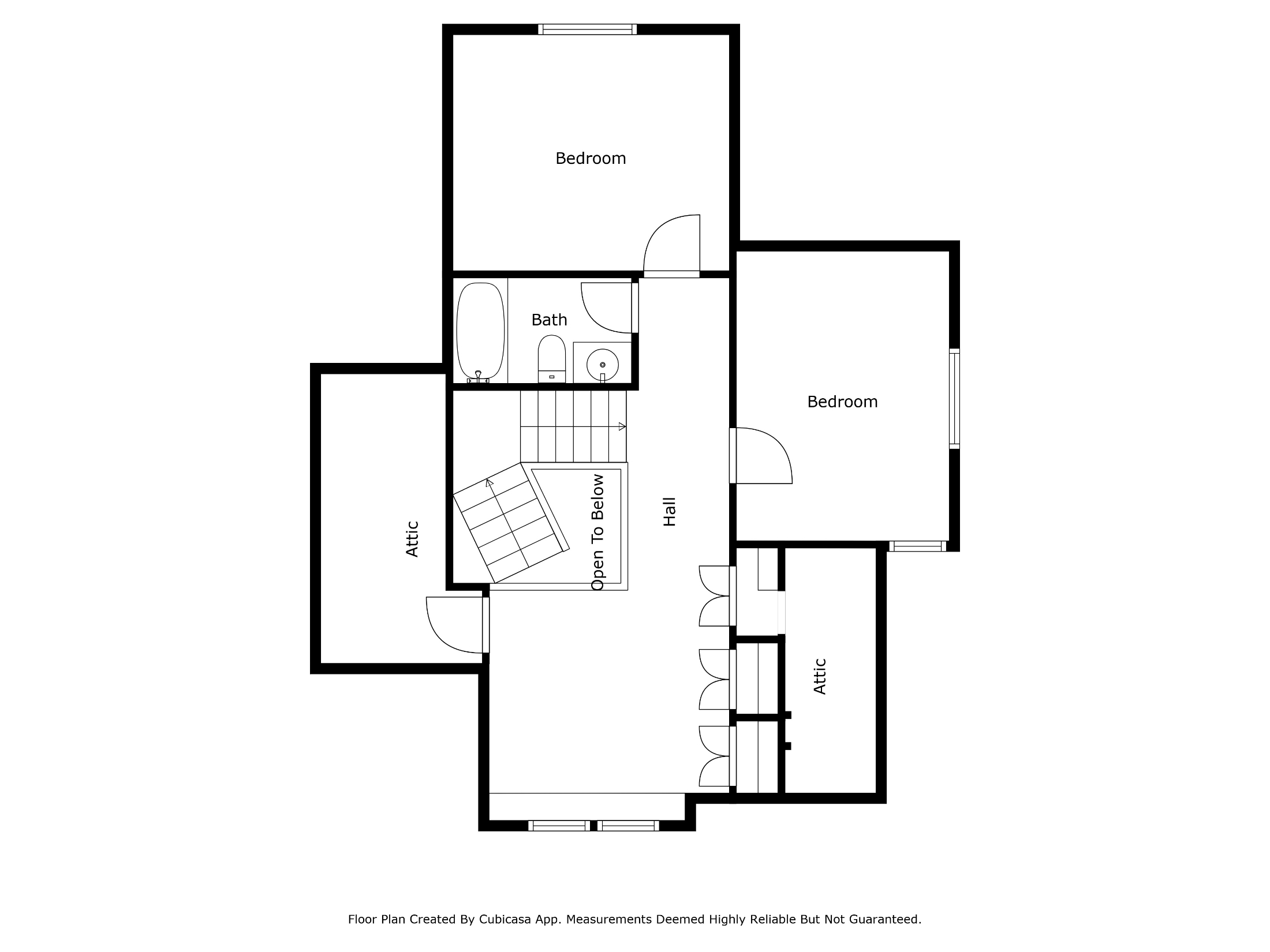
On the second floor you will find 2 additional good sized bedrooms, a family room space, den off of the family room (it has a sloped ceiling) and a bonus secret storage through the cabinetry in the family room. 

This beautiful home has great street appeal. There is an attached 2 car garage (21'2Dx18'5W) with 30 amp plug, great for an EV, porch outside the main entry, large driveway with lots of parking plus additional RV parking both near the shop and beside the house. Other features include a woodshed (18'2x3'6) and storage shed(7'4x11'9), central vacuum, soffit plugs/switch for holiday lights and alarm system. The perennial garden is low maintenance and there are several raised bed veggie gardens. Located in a nice subdivision in Barriere, far from train and highway noise. Walking distance to parks and shopping.

REGISTER NOW TO RECEIVE NEW LISTINGS IN THE KAMLOOPS AREA

The trademarks REALTOR®, REALTORS®, and the REALTOR® logo are controlled by The Canadian Real Estate Association (CREA) and identify real estate professionals who are member’s of CREA. The trademarks MLS®, Multiple Listing Service® and the associated logos are owned by CREA and identify the quality of services provided by real estate professionals who are members of CREA. Used under license.